Logo
+7 917 167 63 01
  • ЖИЛЫЕ ПРОЕКТЫ
  • КОММЕРЧЕСКИЕ ПРОЕКТЫ
  • ЦЕНЫ
  • ОБО МНЕ
  • БЛОГ
  • ФРАНШИЗА
  • КОНТАКТЫ
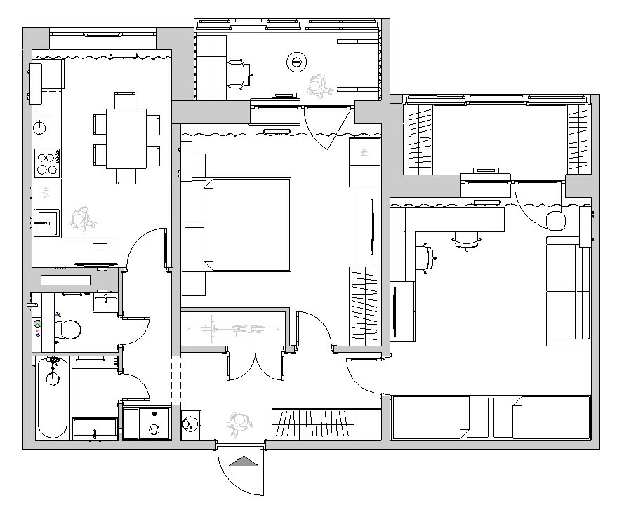
Квартира двухкомнатная 79 м2
Планировочное решение
Объект:
Квартира двухкомнатная 79 м2

Расположение:
г. Тольятти

О проекте:
разработан в 2021 году для проживания семьи из 5 человек (2 взрослых и 3 детей)

Студия дизайна интерьера. Дизайн интерьера дома
Студия дизайна интерьера. Дизайн интерьера дома
Студия дизайна интерьера. Дизайн интерьера дома
Студия дизайна интерьера. Дизайн интерьера дома
Студия дизайна интерьера. Дизайн интерьера дома
Студия дизайна интерьера. Дизайн интерьера дома
Студия дизайна интерьера. Дизайн интерьера дома
Студия дизайна интерьера. Дизайн интерьера дома
Студия дизайна интерьера. Дизайн интерьера дома
Студия дизайна интерьера. Дизайн интерьера дома
Студия дизайна интерьера. Дизайн интерьера дома
Студия дизайна интерьера. Дизайн интерьера дома
Студия дизайна интерьера. Дизайн интерьера дома
Студия дизайна интерьера. Дизайн интерьера дома
Студия дизайна интерьера. Дизайн интерьера дома
Студия дизайна интерьера. Дизайн интерьера дома
Студия дизайна интерьера. Дизайн интерьера дома
Студия дизайна интерьера. Дизайн интерьера дома
Скачайте реальный пример дизайн-проекта для ознакомления
Заполните короткую форму, чтобы иметь доступ к файлу
FlexbeExpert
ОБСУДИМ ПРОЕКТ?

Нажимая на кнопку, вы даете согласие на обработку персональных данных

СПАСИБО ЗА ДОВЕРИЕ
Я перезвоню вам в ближайшее время, не пропустите звонок.
ОБСУДИМ ПРОЕКТ?

Нажимая на кнопку, вы даете согласие на обработку персональных данных

ОБСУДИМ ПРОЕКТ?

Нажимая на кнопку, вы даете согласие на обработку персональных данных

ОБСУДИМ ПРОЕКТ?

Нажимая на кнопку, вы даете согласие на обработку персональных данных

ОБСУДИМ ПРОЕКТ?

Нажимая на кнопку, вы даете согласие на обработку персональных данных

ОБСУДИМ ПРОЕКТ?

Нажимая на кнопку, вы даете согласие на обработку персональных данных

ОБСУДИМ ПРОЕКТ?

Нажимая на кнопку, вы даете согласие на обработку персональных данных