дом 2х этажный 135 м2
Проект «В ритме линии»
Объект:
дом 2х этажный 135 м2
Расположение:
с. Подстепки
О проекте:
разработан в 2024 году для семьи из 4 человек (родители и 2 ребенка)
Запрос клиента:
Заказчики — семья с двумя сыновьями-подростками. Дом — новостройка, и как это часто бывает, перед стартом отделки нужно было:
– продумать функциональную и удобную планировку,
– учесть предпочтения всех членов семьи.
– распланировать электрику.
Но самое главное — клиенты мечтали, чтобы интерьер был необычным, с изюминкой. Посмотрев референсы, мы поняли, это точно не минимализм)). Им нравились нестандартные формы, диагонали, декоративные ниши и световые решения: от криволинейных световых полос на потолке до акцентных встроенных полок. Плюс был один чёткий визуальный ориентир — большие часы в гостиной.
дом 2х этажный 135 м2
Расположение:
с. Подстепки
О проекте:
разработан в 2024 году для семьи из 4 человек (родители и 2 ребенка)
Запрос клиента:
Заказчики — семья с двумя сыновьями-подростками. Дом — новостройка, и как это часто бывает, перед стартом отделки нужно было:
– продумать функциональную и удобную планировку,
– учесть предпочтения всех членов семьи.
– распланировать электрику.
Но самое главное — клиенты мечтали, чтобы интерьер был необычным, с изюминкой. Посмотрев референсы, мы поняли, это точно не минимализм)). Им нравились нестандартные формы, диагонали, декоративные ниши и световые решения: от криволинейных световых полос на потолке до акцентных встроенных полок. Плюс был один чёткий визуальный ориентир — большие часы в гостиной.
Решение:
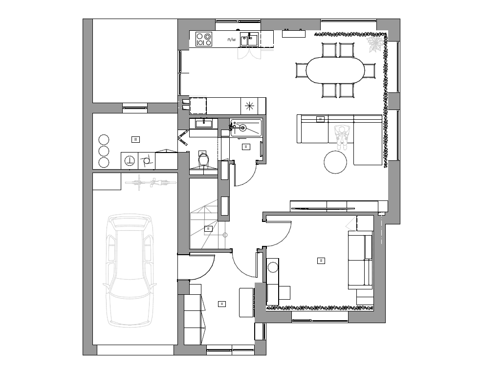
Мы сделали лёгкую перепланировку: убрали глухую стену между кухней и гостиной, заменив её на тонированную стеклянную раздвижную перегородку. Это дало возможность объединять или зонировать пространство по настроению и ситуации.
На кухне появился компактный остров — он стал удобным местом, как для приёма пищи, так и использования в качестве рабочей зоны. Это решение использовали, потому что в кухонном гарнитуре оставалось мало свободной поверхности. А в гостиной предусмотрели раскладной стол-трансформер: в повседневной жизни он журнальный, а при необходимости превращается в обеденный для посиделок в компании.
Для хранения сделали отдельную гардеробную с раздвижными зеркальными дверями — это зрительно расширяет пространство прихожей. В гардеробной спрятаны стиральная и сушильная машины. А в гостиной организовано небольшое, но комфортное рабочее место для ноутбука.
Мы сделали лёгкую перепланировку: убрали глухую стену между кухней и гостиной, заменив её на тонированную стеклянную раздвижную перегородку. Это дало возможность объединять или зонировать пространство по настроению и ситуации.
На кухне появился компактный остров — он стал удобным местом, как для приёма пищи, так и использования в качестве рабочей зоны. Это решение использовали, потому что в кухонном гарнитуре оставалось мало свободной поверхности. А в гостиной предусмотрели раскладной стол-трансформер: в повседневной жизни он журнальный, а при необходимости превращается в обеденный для посиделок в компании.
Для хранения сделали отдельную гардеробную с раздвижными зеркальными дверями — это зрительно расширяет пространство прихожей. В гардеробной спрятаны стиральная и сушильная машины. А в гостиной организовано небольшое, но комфортное рабочее место для ноутбука.