Logo
+7 917 167 63 01
  • ЖИЛЫЕ ПРОЕКТЫ
  • КОММЕРЧЕСКИЕ ПРОЕКТЫ
  • ЦЕНЫ
  • ОБО МНЕ
  • БЛОГ
  • ФРАНШИЗА
  • КОНТАКТЫ
дом одноэтажный 147 м2
Проект «Тепло в квадрате»
Объект:
дом одноэтажный 147 м2

Расположение:
с. Тимофеевка

О проекте:
разработан в 2024 году для семьи из 3 человек (родители и 1 ребенок)

Запрос клиентов:
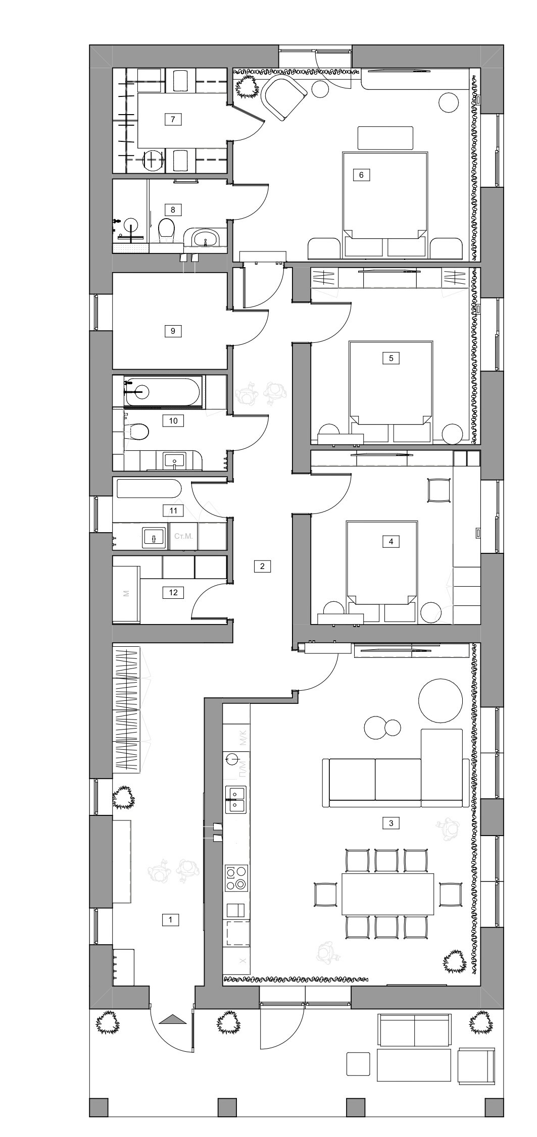
На момент обращения заказчиков дом был в начальной стадии строительства. Он вытянутой формы — из-за особенностей участка, что накладывает отпечаток на проектирование внутренних пространств.
Пожелания семьи были конкретными и практичными:
— интерьер в бежевых, спокойных тонах (без перегрузок, с ощущением уюта и простора);
— закрытая кухня с хорошей вытяжкой, чтобы запахи не распространялись в другие комнаты;
— полноценная прачечная, кладовая, гардеробная и гостевая;
— комфортные комнаты для родителей и сына 13 лет — с учетом интересов и конфиденциальности для каждого.


Решение:
— Гостевая часть (гостиная и кухня) отделена от приватной зоны спален.
— Кухня-гостиная выделена, как отдельное помещение с дверью.
— Хозяйская спальня с гардеробной и санузлом.
— Оборудовали прачечную, кладовую — теперь всё имеет своё место.
— В интерьере — мягкая бежево-нейтральная палитра, современный, комфортный свет, присутствуют закругленные формы мебели.
Такой интерьер не только отражает вкусы хозяев, но и создает ощущение спокойствия и порядка — именно того, чего они хотели от своего дома.

Студия дизайна интерьера. Дизайн интерьера дома
Студия дизайна интерьера. Дизайн интерьера дома
Студия дизайна интерьера. Дизайн интерьера дома
Студия дизайна интерьера. Дизайн интерьера дома
Студия дизайна интерьера. Дизайн интерьера дома
Студия дизайна интерьера. Дизайн интерьера дома
Студия дизайна интерьера. Дизайн интерьера дома
Студия дизайна интерьера. Дизайн интерьера дома
Студия дизайна интерьера. Дизайн интерьера дома
Студия дизайна интерьера. Дизайн интерьера дома
Студия дизайна интерьера. Дизайн интерьера дома
Студия дизайна интерьера. Дизайн интерьера дома
Студия дизайна интерьера. Дизайн интерьера дома
Студия дизайна интерьера. Дизайн интерьера дома
Студия дизайна интерьера. Дизайн интерьера дома
Студия дизайна интерьера. Дизайн интерьера дома
Студия дизайна интерьера. Дизайн интерьера дома
Студия дизайна интерьера. Дизайн интерьера дома
Студия дизайна интерьера. Дизайн интерьера дома
Студия дизайна интерьера. Дизайн интерьера дома
Студия дизайна интерьера. Дизайн интерьера дома
ОБСУДИМ ПРОЕКТ?

Нажимая на кнопку, вы даете согласие на обработку персональных данных

СПАСИБО ЗА ДОВЕРИЕ
Я перезвоню вам в ближайшее время, не пропустите звонок.
ОБСУДИМ ПРОЕКТ?

Нажимая на кнопку, вы даете согласие на обработку персональных данных

ОБСУДИМ ПРОЕКТ?

Нажимая на кнопку, вы даете согласие на обработку персональных данных

ОБСУДИМ ПРОЕКТ?

Нажимая на кнопку, вы даете согласие на обработку персональных данных