Дом 2-х этажный 172 м2
Проект: «Дом с видом на Волгу»
Объект:
дом 2-х этажный 172 м2
Расположение:
с. Хрящевка
О проекте:
разработан в 2024 году для семьи из 3 человек (родители и взрослая дочь), а также 2 кошки и собака))
Запрос клиента:
Ко мне обратилась семья из трёх взрослых: родители и взрослая дочь. Дом расположен у Волги — вид из окон просто завораживает, и заказчики хотели сделать его центральной частью интерьера. Было важно, чтобы окна были не просто большими, а открывали панораму с ключевых точек — например, с кровати или из зоны отдыха.
⠀
Также в списке пожеланий:
— камин как точка уюта,
— сложная цветовая гамма: бордовые, розовые, кофейные и зелёные оттенки,
— проектор во втором холле — хотели создать пространство для уютных просмотров,
— зонирование и комфорт не только для людей, но и для питомцев (в доме живут две кошки и собака),
— большая система хранения с прачечной
⠀
Клиенты самостоятельно попытались спланировать расстановку мебели, но понимали, что нужна доработка — не хватало логики и комфорта в передвижении.
дом 2-х этажный 172 м2
Расположение:
с. Хрящевка
О проекте:
разработан в 2024 году для семьи из 3 человек (родители и взрослая дочь), а также 2 кошки и собака))
Запрос клиента:
Ко мне обратилась семья из трёх взрослых: родители и взрослая дочь. Дом расположен у Волги — вид из окон просто завораживает, и заказчики хотели сделать его центральной частью интерьера. Было важно, чтобы окна были не просто большими, а открывали панораму с ключевых точек — например, с кровати или из зоны отдыха.
⠀
Также в списке пожеланий:
— камин как точка уюта,
— сложная цветовая гамма: бордовые, розовые, кофейные и зелёные оттенки,
— проектор во втором холле — хотели создать пространство для уютных просмотров,
— зонирование и комфорт не только для людей, но и для питомцев (в доме живут две кошки и собака),
— большая система хранения с прачечной
⠀
Клиенты самостоятельно попытались спланировать расстановку мебели, но понимали, что нужна доработка — не хватало логики и комфорта в передвижении.
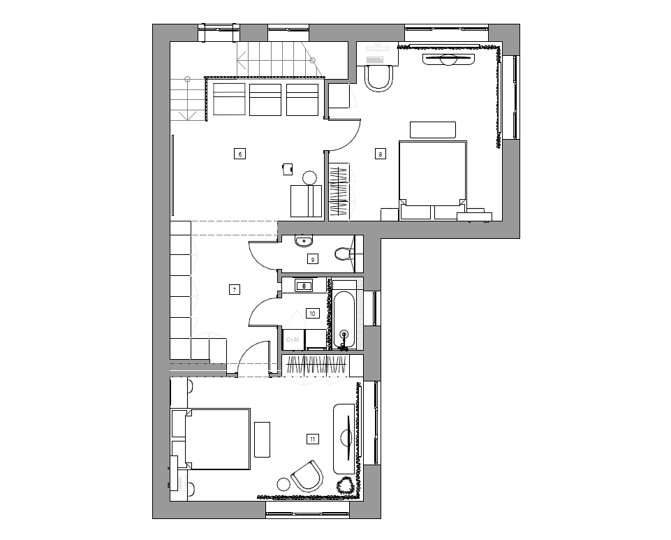
Решение
Проект получился тёплым, необычным и очень живым — как и сами хозяева.
📍 Главный фокус — вид на Волгу.
Мы развернули основные точки интерьера — кровать, зону отдыха, кресла — так, чтобы в кадре всегда было большое окно и вода. А сам дом словно раскрыт навстречу пейзажу.
📍 Питомцы — полноценные жители.
Сделали специальные ходы в стенах санузлов — теперь двери можно держать закрытыми, а кошки спокойно ходят по своим делам. Установили домик с лазилками и спальное место для животных.
📍 Цвет — глубокий и насыщенный.
Палитра построена на сложных оттенках: бордо, роза, кофейный, зелёный океанический. Они объединяют интерьер и создают атмосферу уюта, где хочется остаться надолго.
📍 Камин и проектор — для душевных вечеров.
Камин стал не просто элементом декора, а настоящей душой дома. А на втором этаже в холле разместили проектор — это оказалось идеальным решением: пространство достаточно просторное, но камерное по настроению. Там же мы организовали систему хранения и встроили стиральную и сушильную машины — чтобы всё под рукой, но ничего не бросалось в глаза.
📍 Планировка — удобная и продуманная.
Мы переработали первоначальное зонирование, учли все пожелания и сделали дом, в котором легко дышится, удобно жить и хочется возвращаться.
Проект получился тёплым, необычным и очень живым — как и сами хозяева.
📍 Главный фокус — вид на Волгу.
Мы развернули основные точки интерьера — кровать, зону отдыха, кресла — так, чтобы в кадре всегда было большое окно и вода. А сам дом словно раскрыт навстречу пейзажу.
📍 Питомцы — полноценные жители.
Сделали специальные ходы в стенах санузлов — теперь двери можно держать закрытыми, а кошки спокойно ходят по своим делам. Установили домик с лазилками и спальное место для животных.
📍 Цвет — глубокий и насыщенный.
Палитра построена на сложных оттенках: бордо, роза, кофейный, зелёный океанический. Они объединяют интерьер и создают атмосферу уюта, где хочется остаться надолго.
📍 Камин и проектор — для душевных вечеров.
Камин стал не просто элементом декора, а настоящей душой дома. А на втором этаже в холле разместили проектор — это оказалось идеальным решением: пространство достаточно просторное, но камерное по настроению. Там же мы организовали систему хранения и встроили стиральную и сушильную машины — чтобы всё под рукой, но ничего не бросалось в глаза.
📍 Планировка — удобная и продуманная.
Мы переработали первоначальное зонирование, учли все пожелания и сделали дом, в котором легко дышится, удобно жить и хочется возвращаться.
Галина Калашникова
Главный дизайнер
💬 Этот проект — пример того, как можно соединить эстетику, комфорт и любовь к деталям в одном пространстве.
Хотите такой дом, в котором и про вид, и про вас, и про ваших любимцев — напишите мне.
Хотите такой дом, в котором и про вид, и про вас, и про ваших любимцев — напишите мне.
Скачайте реальный пример дизайн-проекта для ознакомления
Заполните короткую форму, чтобы иметь доступ к файлу