Logo
+7 917 167 63 01
  • ЖИЛЫЕ ПРОЕКТЫ
  • КОММЕРЧЕСКИЕ ПРОЕКТЫ
  • ЦЕНЫ
  • ОБО МНЕ
  • БЛОГ
  • ФРАНШИЗА
  • КОНТАКТЫ
Офис арендуемый для 2х человек

Проект «Функция без лишнего»

Объект:
помещение 67 м2

Расположение:
г. Тольятти

О проекте:
разработан в 2023 году

Запрос клиента:
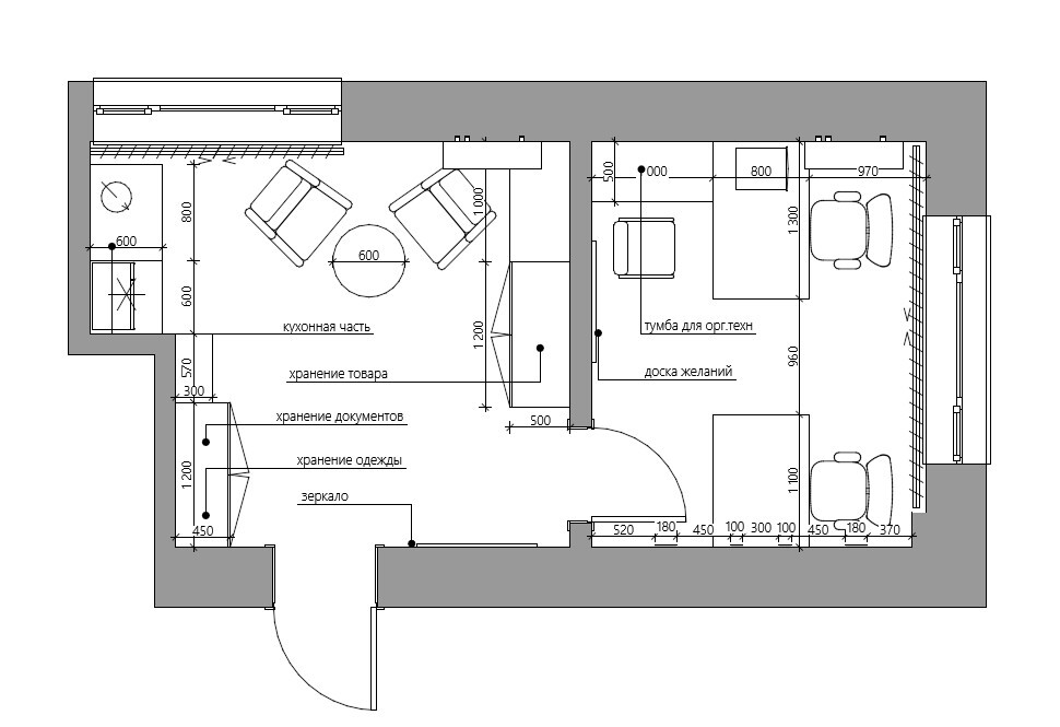
Заказчики арендовали два кабинета с готовым ремонтом, но без мебели. Требовалось:
— организовать два полноценных рабочих места;
— выделить зону для встреч и переговоров;
— предусмотреть систему хранения;
— добавить небольшую кухню;
— при этом уложиться в разумный бюджет, учитывая, что помещение — арендуемое.

Решение:
Мы распределили пространство по функционалу:
— один кабинет сделали рабочим — спокойным, удобным и не перегруженным;
— второй превратили в многофункциональную комнату: здесь разместили мини-кухню, места хранения и зону для встреч.
Подготовили визуализации, чтобы клиенты точно понимали будущий результат, подобрали мебель и материалы, согласовали всё с мебельщиками и учли нюансы арендного помещения — чтобы решение было и эстетичным, и практичным.

Галина Калашникова
Главный дизайнер
Если чувствуете, что вашему рабочему месту пора сделать «апгрейд» — просто напишите мне.
Скачайте реальный пример дизайн-проекта для ознакомления
Заполните короткую форму, чтобы иметь доступ к файлу
FlexbeExpert
ОБСУДИМ ПРОЕКТ?

Нажимая на кнопку, вы даете согласие на обработку персональных данных

СПАСИБО ЗА ДОВЕРИЕ
Я перезвоню вам в ближайшее время, не пропустите звонок.
ОБСУДИМ ПРОЕКТ?

Нажимая на кнопку, вы даете согласие на обработку персональных данных

ОБСУДИМ ПРОЕКТ?

Нажимая на кнопку, вы даете согласие на обработку персональных данных

ОБСУДИМ ПРОЕКТ?

Нажимая на кнопку, вы даете согласие на обработку персональных данных

ОБСУДИМ ПРОЕКТ?

Нажимая на кнопку, вы даете согласие на обработку персональных данных

ОБСУДИМ ПРОЕКТ?

Нажимая на кнопку, вы даете согласие на обработку персональных данных

ОБСУДИМ ПРОЕКТ?

Нажимая на кнопку, вы даете согласие на обработку персональных данных

ОБСУДИМ ПРОЕКТ?

Нажимая на кнопку, вы даете согласие на обработку персональных данных

ОБСУДИМ ПРОЕКТ?

Нажимая на кнопку, вы даете согласие на обработку персональных данных

ОБСУДИМ ПРОЕКТ?

Нажимая на кнопку, вы даете согласие на обработку персональных данных

ОБСУДИМ ПРОЕКТ?

Нажимая на кнопку, вы даете согласие на обработку персональных данных

ОБСУДИМ ПРОЕКТ?

Нажимая на кнопку, вы даете согласие на обработку персональных данных

ОБСУДИМ ПРОЕКТ?

Нажимая на кнопку, вы даете согласие на обработку персональных данных

ОБСУДИМ ПРОЕКТ?

Нажимая на кнопку, вы даете согласие на обработку персональных данных

ОБСУДИМ ПРОЕКТ?

Нажимая на кнопку, вы даете согласие на обработку персональных данных

ОБСУДИМ ПРОЕКТ?

Нажимая на кнопку, вы даете согласие на обработку персональных данных