Logo
+7 917 167 63 01
  • ЖИЛЫЕ ПРОЕКТЫ
  • КОММЕРЧЕСКИЕ ПРОЕКТЫ
  • ЦЕНЫ
  • ОБО МНЕ
  • БЛОГ
  • ФРАНШИЗА
  • КОНТАКТЫ
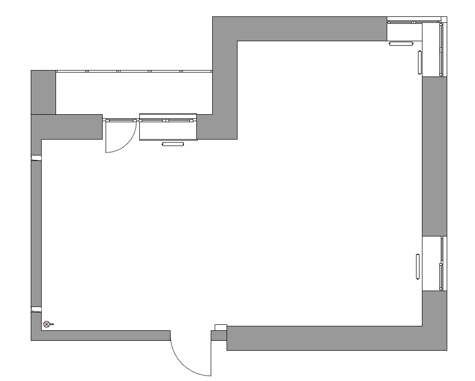
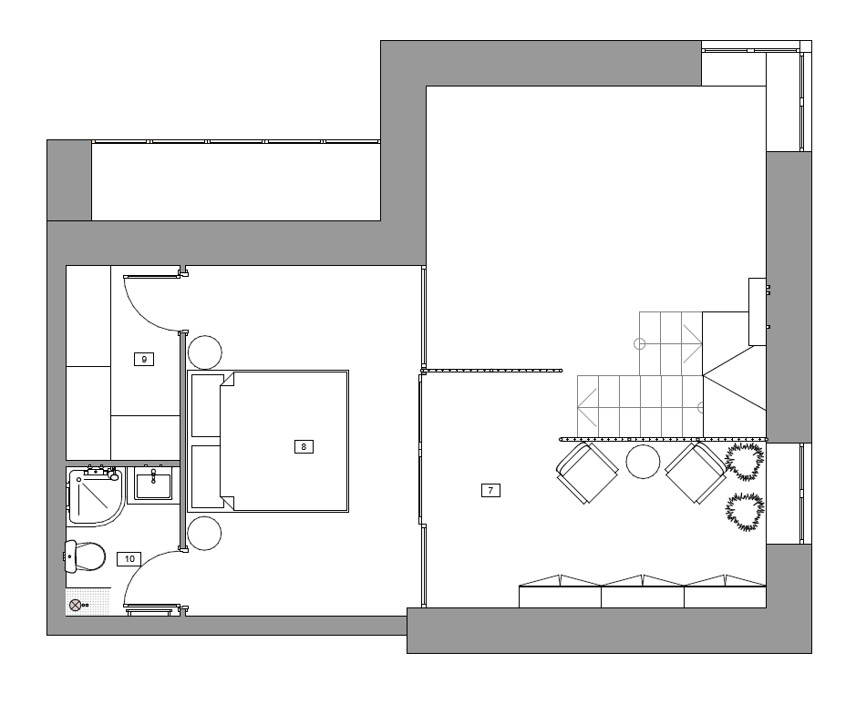
Квартира свободной планировки 52 м2 с высотой потолков 4,8м
Проект "Морской бриз на высоте"
Объект:
квартира свободной планировки 52 м2 с потолками 4,8 м

Расположение:
г. Тольятти

О проекте:
разработан в 2023 году для семьи из 2 человек

Запрос клиентов:
Пара 50+ с внушительным домашним зоопарком — три собаки и два кота — обратились ко мне за помощью.
Отправной точкой в выборе стиля стала, как ни странно, плитка для санузла. Она уже была выбрана заказчиками самостоятельно, мне надо было ее вписать.
Квартира свободной планировки с потолками 4,8 метра давала простор для идей, а список пожеланий включал: кухню-гостиную, спальню, санузел, кабинет, зону для чтения и обязательное место для хранения инструментов.

Решение:
Интерьер родился с идеи — и буквально с картинки на плитке. Морская тема, заданная заказчиками, стала отправной точкой: мы передали настроение через палитру, текстуры и детали. Интерьер получился тёплым, светлым и как будто наполненным солёным воздухом уюта.,

Высокие потолки дали нам фору — мы использовали пространство по максимуму и добавили антресоль, где разместились дополнительные функциональные зоны. Там получилось уютное местечко у перилл и окна для чтения, там же будет стеллаж для сувениров, у заказчиком их много.

Полы по всей квартире — керамогранит с системой тёплого пола, чтобы и хозяевам, и хвостатым жильцам было комфортно и полу прослужили долго.
В санузле выделена отдельная мойка с душем для собак.

Особенное внимание — большому угловому окну. Мы превратили его в уютное мягкое место для отдыха: читать, пить чай, наблюдать за дождём — идеально.

Студия дизайна интерьера. Дизайн интерьера дома
Студия дизайна интерьера. Дизайн интерьера дома
Студия дизайна интерьера. Дизайн интерьера дома
Студия дизайна интерьера. Дизайн интерьера дома
Студия дизайна интерьера. Дизайн интерьера дома
Студия дизайна интерьера. Дизайн интерьера дома
Студия дизайна интерьера. Дизайн интерьера дома
Студия дизайна интерьера. Дизайн интерьера дома
Студия дизайна интерьера. Дизайн интерьера дома
Студия дизайна интерьера. Дизайн интерьера дома
Студия дизайна интерьера. Дизайн интерьера дома
Студия дизайна интерьера. Дизайн интерьера дома
Студия дизайна интерьера. Дизайн интерьера дома
Студия дизайна интерьера. Дизайн интерьера дома
Студия дизайна интерьера. Дизайн интерьера дома
Студия дизайна интерьера. Дизайн интерьера дома
Скачайте реальный пример дизайн-проекта для ознакомления
Заполните короткую форму, чтобы иметь доступ к файлу
FlexbeExpert
ОБСУДИМ ПРОЕКТ?

Нажимая на кнопку, вы даете согласие на обработку персональных данных

СПАСИБО ЗА ДОВЕРИЕ
Я перезвоню вам в ближайшее время, не пропустите звонок.
ОБСУДИМ ПРОЕКТ?

Нажимая на кнопку, вы даете согласие на обработку персональных данных

ОБСУДИМ ПРОЕКТ?

Нажимая на кнопку, вы даете согласие на обработку персональных данных

ОБСУДИМ ПРОЕКТ?

Нажимая на кнопку, вы даете согласие на обработку персональных данных

ОБСУДИМ ПРОЕКТ?

Нажимая на кнопку, вы даете согласие на обработку персональных данных

ОБСУДИМ ПРОЕКТ?

Нажимая на кнопку, вы даете согласие на обработку персональных данных

ОБСУДИМ ПРОЕКТ?

Нажимая на кнопку, вы даете согласие на обработку персональных данных