Квартира 1-комнатная 23,7 м2
Проект: "Современный ритм в старых стенах"
Объект:
квартира 23,7 м2
Расположение:
г. Самара
О проекте:
разработан в 2025 году для проживания 2 человек
Запрос клиента
Ко мне обратился мужчина с задачей спроектировать инвестиционную квартиру площадью 24 м² — для последующей перепродажи или сдачи в аренду.
Основные требования:
— разместить зону для проживания двух человек с дополнительным спальным местом, например, для ребенка;
— предусмотреть обеденную зону на троих;
— организовать рабочее место;
— оставить ванну, не душ;
— сделать так, чтобы спальное место было полноценной кроватью, а не диваном,
— и при этом — была отдельная кухня, а не студия.
Работу мы начали уже после того, как заказчик выполнил монтажные работы: перегородки были возведены, сделана электрика, сантехника и отделка санузла. Ранее квартира это была трёхкомнатная сталинка, потом ее разделили на три отдельные части.
квартира 23,7 м2
Расположение:
г. Самара
О проекте:
разработан в 2025 году для проживания 2 человек
Запрос клиента
Ко мне обратился мужчина с задачей спроектировать инвестиционную квартиру площадью 24 м² — для последующей перепродажи или сдачи в аренду.
Основные требования:
— разместить зону для проживания двух человек с дополнительным спальным местом, например, для ребенка;
— предусмотреть обеденную зону на троих;
— организовать рабочее место;
— оставить ванну, не душ;
— сделать так, чтобы спальное место было полноценной кроватью, а не диваном,
— и при этом — была отдельная кухня, а не студия.
Работу мы начали уже после того, как заказчик выполнил монтажные работы: перегородки были возведены, сделана электрика, сантехника и отделка санузла. Ранее квартира это была трёхкомнатная сталинка, потом ее разделили на три отдельные части.
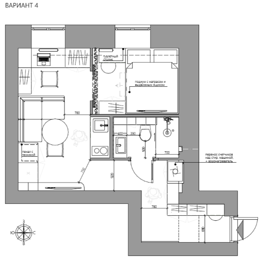
Решение
Мы предложили шесть планировочных вариантов — от максимально функциональных до нестандартных по зонированию. После обсуждения заказчик понял, что даже в уже отремонтированном пространстве можно найти решения, которые делают квартиру гораздо удобнее и логичнее.
Высокие потолки (3,2 м) стали преимуществом — это визуально расширяет пространство.
— Мы поддержали стилистику старого фонда: сделали потолок с классическими карнизами и мягкой подсветкой.
— Форму арочных окон хотелось поддержать в интерьере, поэтому использовали закругленные части в других деталях.
— Широкие подоконники использовали функционально: продлили их в виде столешницы, получив обеденный и рабочий стол.
— В нейтральную базу добавили оранжевые и серо-голубые акценты, чтобы интерьер получился современным, но тёплым и уютным.
Результат
Квартира получилась многофункциональной и живой — несмотря на скромные 24 м², в ней комфортно может жить пара, а при необходимости — разместиться и гости.
Благодаря продуманной планировке и акцентам в отделке интерьер выглядит дороже и просторнее, чем можно ожидать от таких метражей.
А главное — заказчик получил не просто проект “для галочки”, а рабочее решение, которое повышает инвестиционную привлекательность квартиры.
Мы предложили шесть планировочных вариантов — от максимально функциональных до нестандартных по зонированию. После обсуждения заказчик понял, что даже в уже отремонтированном пространстве можно найти решения, которые делают квартиру гораздо удобнее и логичнее.
Высокие потолки (3,2 м) стали преимуществом — это визуально расширяет пространство.
— Мы поддержали стилистику старого фонда: сделали потолок с классическими карнизами и мягкой подсветкой.
— Форму арочных окон хотелось поддержать в интерьере, поэтому использовали закругленные части в других деталях.
— Широкие подоконники использовали функционально: продлили их в виде столешницы, получив обеденный и рабочий стол.
— В нейтральную базу добавили оранжевые и серо-голубые акценты, чтобы интерьер получился современным, но тёплым и уютным.
Результат
Квартира получилась многофункциональной и живой — несмотря на скромные 24 м², в ней комфортно может жить пара, а при необходимости — разместиться и гости.
Благодаря продуманной планировке и акцентам в отделке интерьер выглядит дороже и просторнее, чем можно ожидать от таких метражей.
А главное — заказчик получил не просто проект “для галочки”, а рабочее решение, которое повышает инвестиционную привлекательность квартиры.
Галина Калашникова
Главный дизайнер
Если у вас небольшая квартира и кажется, что «тут ничего не придумать» — просто покажите её дизайнеру.
Продуманная планировка превращает даже 20 квадратов в полноценное, уютное жильё.
📩 Напишите, чтобы обсудить ваш проект — посмотрим, какие варианты подойдут именно вам.
Продуманная планировка превращает даже 20 квадратов в полноценное, уютное жильё.
📩 Напишите, чтобы обсудить ваш проект — посмотрим, какие варианты подойдут именно вам.
Скачайте реальный пример дизайн-проекта для ознакомления
Заполните короткую форму, чтобы иметь доступ к файлу