Logo
+7 917 167 63 01
  • ЖИЛЫЕ ПРОЕКТЫ
  • КОММЕРЧЕСКИЕ ПРОЕКТЫ
  • ЦЕНЫ
  • ОБО МНЕ
  • БЛОГ
  • ФРАНШИЗА
  • КОНТАКТЫ
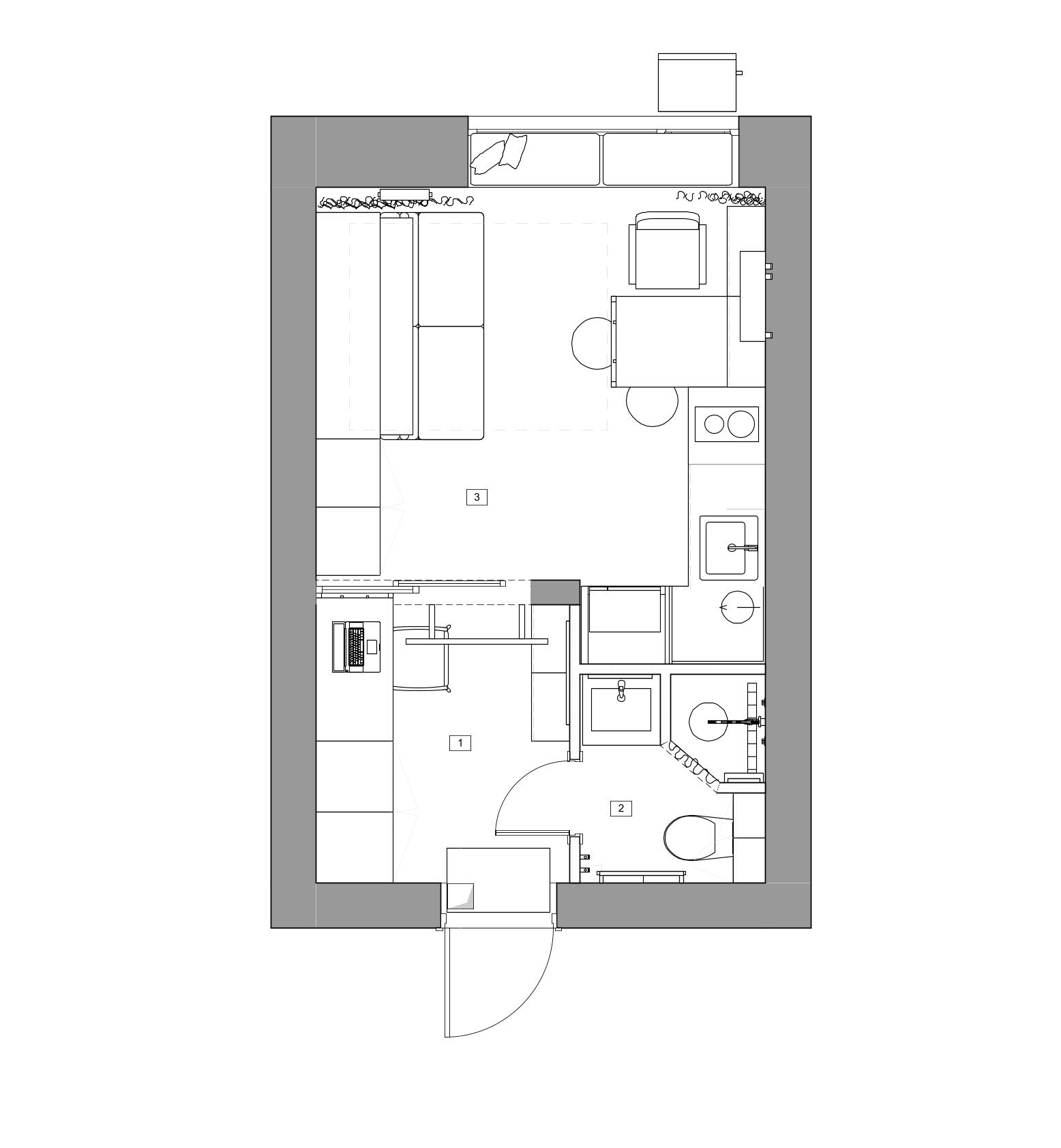
Квартира-студия
18,2 м2, Самара
Проект: "Все включено"
Объект:
квартира-студия 18,2 м2

Расположение:
г. Самара

О проекте:
разработан в 2025 году для проживания одного человека (мужчина)

Запрос клиента
Владелец — мужчина, которому важно, чтобы маленькая квартира была функциональной «по максимуму».
Из пожеланий:
— рабочее место с небытовым фоном для зум-встреч,
— полноценная кровать и зона отдыха,
— места хранения,
— турник и мягкое место на окне,
— уютное пространство для встреч с детьми,
— решение проблемы плохой вентиляции.

Решение
Мы сделали компактную перепланировку и буквально «собрали» квартиру как трансформер:
📍 увеличили санузел за счёт прихожей, установили тёплую стену с настенной сушилкой и системой для сушки белья под потолком;
📍 организовали кабинет в части коридора, отделив его стеклянной раздвижной перегородкой и сделав красивое световое панно для фона в видеозвонков;
📍 использовали кровать-трансформер и сделали уютное окно-место для отдыха;
📍 разместили кухню в общей комнате (раньше она была у входа), сделали обеденную барную стойку на 3 человека, так как к хозяину приходят дети;
📍 спроектировали ТВ-зону с приставкой, предусмотрели 2 шкафа для хранения;
📍 добавили турник для спорта и отдыха.
Результат
18 м² превратились в функциональную, современную и уютную квартиру, где есть всё: от работы и спорта до релакса и встреч с близкими.

Студия дизайна интерьера. Дизайн интерьера дома
Студия дизайна интерьера. Дизайн интерьера дома
Студия дизайна интерьера. Дизайн интерьера дома
Студия дизайна интерьера. Дизайн интерьера дома
Студия дизайна интерьера. Дизайн интерьера дома
Студия дизайна интерьера. Дизайн интерьера дома
Студия дизайна интерьера. Дизайн интерьера дома
Студия дизайна интерьера. Дизайн интерьера дома
Студия дизайна интерьера. Дизайн интерьера дома
Студия дизайна интерьера. Дизайн интерьера дома
Студия дизайна интерьера. Дизайн интерьера дома
Студия дизайна интерьера. Дизайн интерьера дома
Студия дизайна интерьера. Дизайн интерьера дома
Студия дизайна интерьера. Дизайн интерьера дома
Студия дизайна интерьера. Дизайн интерьера дома
Скачайте реальный пример дизайн-проекта для ознакомления
Заполните короткую форму, чтобы иметь доступ к файлу
FlexbeExpert
ОБСУДИМ ПРОЕКТ?

Нажимая на кнопку, вы даете согласие на обработку персональных данных

СПАСИБО ЗА ДОВЕРИЕ
Я перезвоню вам в ближайшее время, не пропустите звонок.
ОБСУДИМ ПРОЕКТ?

Нажимая на кнопку, вы даете согласие на обработку персональных данных

ОБСУДИМ ПРОЕКТ?

Нажимая на кнопку, вы даете согласие на обработку персональных данных

ОБСУДИМ ПРОЕКТ?

Нажимая на кнопку, вы даете согласие на обработку персональных данных

ОБСУДИМ ПРОЕКТ?

Нажимая на кнопку, вы даете согласие на обработку персональных данных

ОБСУДИМ ПРОЕКТ?

Нажимая на кнопку, вы даете согласие на обработку персональных данных

ОБСУДИМ ПРОЕКТ?

Нажимая на кнопку, вы даете согласие на обработку персональных данных